МАССИВНАЯ ДЕРЕВЯННАЯ СТЕНА
Cтроительство из массива древесины: экологичное и индивидуальное
СОВРЕМЕННАЯ КОНЦЕПЦИЯ СТРОИТЕЛЬСТВА
Стабильно повышать ценность
Вы ищете инновационную систему строительства из массива древесины для увеличения добавленной стоимости на вашем предприятии?
Вы хотите строить индивидуальные, экологичные и экономичные здания для своих клиентов или предлагаете их в виде комплекта?
Концепция строительства из МАССИВНЫХ –ДЕРЕВЯННЫХ –СТЕН (Massiv-Holz-Mauer® = MHM®) предлагает вам наилучшее решение.
Технология MHM® представляет собой массивную прочную конструкцию, достойную альтернативу как обычной массивной конструкции из кирпича и бетона, так и всем деревянным строительным системам, представленным на рынке.
Творческий и универсальный
С технологией MHM® у вас есть возможность предложить своим клиентам теплый, безопасный и недорогой строительный материал, полностью изготовленный из натуральной древесины, который гарантирует свободу дизайна и дает пространство для творчества архитектора.
Внутренние и наружные стены MHM® можно комбинировать со всеми распространенными потолочными системами, а так называемые гибридные конструкции также являются довольно популярной моделью решения.
Высокая степень сборки стены из MHM® и гипсокартона обеспечивают короткий период строительства и множество других преимуществ, таких как возможность строительства даже зимой, например, немедленный и плавный переход к внутренней отделке.
ИДЕАЛЬНЫЙ СТРОИТЕЛЬНЫЙ МАТЕРИАЛ
Без клея, без химии!
Стена из MHM® — это высококачественный и недорогой строительный материал, отвечающий всем требованиям с точки зрения экологии, экономии, сохранности, эстетики и статики.
Технология MHM® впечатляет своими преимуществами: древесина — это местный и натуральный строительный материал, достоинства которого все больше ценятся как в частном жилищном, так и в коммерческом строительстве, а также в государственном строительном секторе.
В современном строительстве все меньше ценят экологичность (здоровье) жилья, и как экологически чистый, открытый для диффузии, возобновляемый и пригодный для вторичной переработки строительный материал, MHM® получает в этом отношении сразу большое преимущество.
Проверенный и сертифицированный строительный материал
Опора на готовый, многократно протестированный и сертифицированный строительный материал дает вам множество преимуществ;
что касается строительной физики, строительной инженерии и проектной поддержки, мы будем рады поделиться с вами нашим опытом.
ГЛАВНЫЕ ВЫГОДЫ:
- ●Изготовление стен из MHM® из досок своими руками
- ●Создание добавленной стоимости на собственном предприятии
- ●Полностью спроектированная строительная система из массива дерева
- ●Индивидуальный, экологичный и экономичный
- ●Современный, с использованием возобновляемого, и полезного строительного материала
- ●Любые варианты фасадных решений

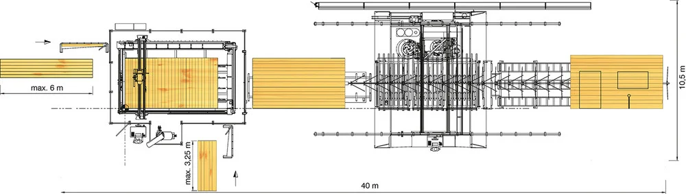
ПРОИЗВОДСТВЕННАЯ ЛИНИЯ MHM®
Изготовление прочной стены из MHM® в три этапа
Стена из MHM® производится на специально разработанной производственной линии.
Линия состоит из трех станков:
- 4-х сторонний строгальный станок (NFA) для обработки пазов,
- Вандмастер (WM) – станок, сбивающий доски алюминиевыми гвоздями крест-накрест,
- Портальный обрабатывающий центр (PBA) – обработка панелей стен.
Таким образом, производственный процесс делится на три этапа:
- строгание досок с продольными пазами + «четверть» по боковым частям,
- сбивка (сборка) досок алюминиевыми гвоздями в панель размером около 325×610 см;
- финишная обработка панели (стены) по плоскости и по всем боковым частям, с точностью до миллиметра.
4-х СТОРОННИЙ СТАНОК ДЛЯ ФРЕЗЕРОВКИ ПАЗОВ И ЧЕТВЕРТИ
На первом этапе производится строгание высушенных досок с фрезеровкой продольных пазов (канавок) и четвертей по боковым частям. Это обеспечивает воздушные карманы между слоями досок позже в готовой стене, что даёт значительно лучшую изоляцию и теплосбережение, чем у чистой цельной древесины.
- Простое управление
- Настройка ширины доски от 10 до 28 см
- Подача досок без перенастройки ширины
- Продольные пазы и четверти за один проход
- Работает один человек
ВАНДМАСТЕР
В данном станке строганные доски (от NFA) соединяются слой за слоем и крест-накрест, образуя необработанные стеновые панели желаемой толщины.
Проверенная веками техника соединения досок современна и сегодня
Вандмастер (WM) оснащён автоматической системой сортировки гвоздей, которая обеспечивает направленную подачу алюминиевых рифлёных гвоздей в скоростные гвозде-забивочные пистолеты. Таким образом, не требуются гвозди в кассетах, из-за которых образуется много мусора, и при этом нет необходимости вручную перезаряжать гвоздевые пистолеты. Используемые алюминиевые гвозди изготовлены из био-безопасного переработанного алюминия, который можно повторно использовать в цикле переработки в любое время.
Автоматизация и оптимизация производственного процесса
Вандмастер (WM) автоматически определяет и точно позиционирует доски различной ширины, так что гвозди всегда забиваются на стыках досок, обеспечивая тем самым жёсткое крепление. Забивание гвоздями проходит через два слоя досок за раз, которые укладываются в шахматном порядке: так получается однородная стена из MHM®, которая сама по себе однородна. Когда достигается желаемая толщина стены (панели), обрабатывающий стол опускается, так что весь элемент/панель находится на роликах и может подаваться в портальный обрабатывающий центр с ЧПУ «PBA» для дальнейшей обработки.
Поперечный конвейер обеспечивает бесперебойную подачу досок и позволяет оператору станка перепроверить качество каждой доски перед загрузкой. У оператора станка есть время для выполнения других сопутствующих работ, и он разгружается за счёт автоматического продвижения досок перед креплением.
ПОРТАЛЬНЫЙ ОБРАБАТЫВАЮЩИЙ ЦЕНТР «PBA»
На заключительном этапе готовые необработанные стеновые панели обрабатываются на Портальном Обрабатывающем Центре с ЧПУ «PBA». Пакет данных передаётся на Портал из конструкторской программы. Обработка происходит в автоматическом режиме с точностью до миллиметра.
Выравнивание и точное форматирование
В станке PBA необработанные элементы из MHM® строгаются (выравниваются) по плоскости для создания гладкой/ровной поверхности. Толщина стен здесь точно выдерживается. После этого 5-осевая циркулярная пила форматирует стены до точной длины и высоты панели. Допуски здесь составляют не более +/- 1 мм. Различные рабочие агрегаты обеспечивают возможность быстрой, простой и точной резки любого типа, что позволяет реализовать любые архитектурные идеи. На этом этапе работы также вырезаются оконные и дверные проёмы с помощью шлиц-агрегата и различных фрезерных агрегатов, а также фрезеруются каналы для сантехники и электропроводки.
Оптимизация материалов и времени
PBA оснащён новейшей программой управления, которая обеспечивает оптимальное использование общей площади стеновых панелей за счёт нестинга (оптимизация раскроя панели).
Интуитивно понятное ПО станка
Встроенный интерфейс позволяет передавать данные обработки из стандартных программ САПР для деревянных конструкций. Однако оператор станка также может вводить или изменять все этапы обработки непосредственно на станке, используя простой в освоении графический интерфейс пользователя.
MHM® ТЕХНОЛОГИЧЕСКАЯ ЛИНИЯ
УСТАНОВОЧНЫЕ РАЗМЕРЫ ЛИНИИ
Скачать проспекты:
Галерея объектов
Разнообразие и эстетика деревянного домостроения
ВАРИАНТЫ ЭКСТЕРЬЕРОВ
ВАРИАНТЫ ИНТЕРЬЕРОВ











































































