Hundegger ROBOT-Max
НОВЫЙ УРОВЕНЬ В ПРОМЫШЛЕННОСТИ
Производительность, универсальность и гибкость ROBOT-Max в сочетании с мощью программного обеспечения
Cambium устанавливают новый стандарт в промышленной обработке клееного бруса.
ROBOT-Max компании Hundegger расширяет неограниченные возможности обработки древесины благодаря
6-осевому роботизированному агрегату с возможностью обработки заготовок
до 610 × 1300 мм за один проход.
Настраиваемые опции ROBOT-Max отвечают требованиям растущей деревообрабатывающей промышленности
к более высокой производительности и гибкости.
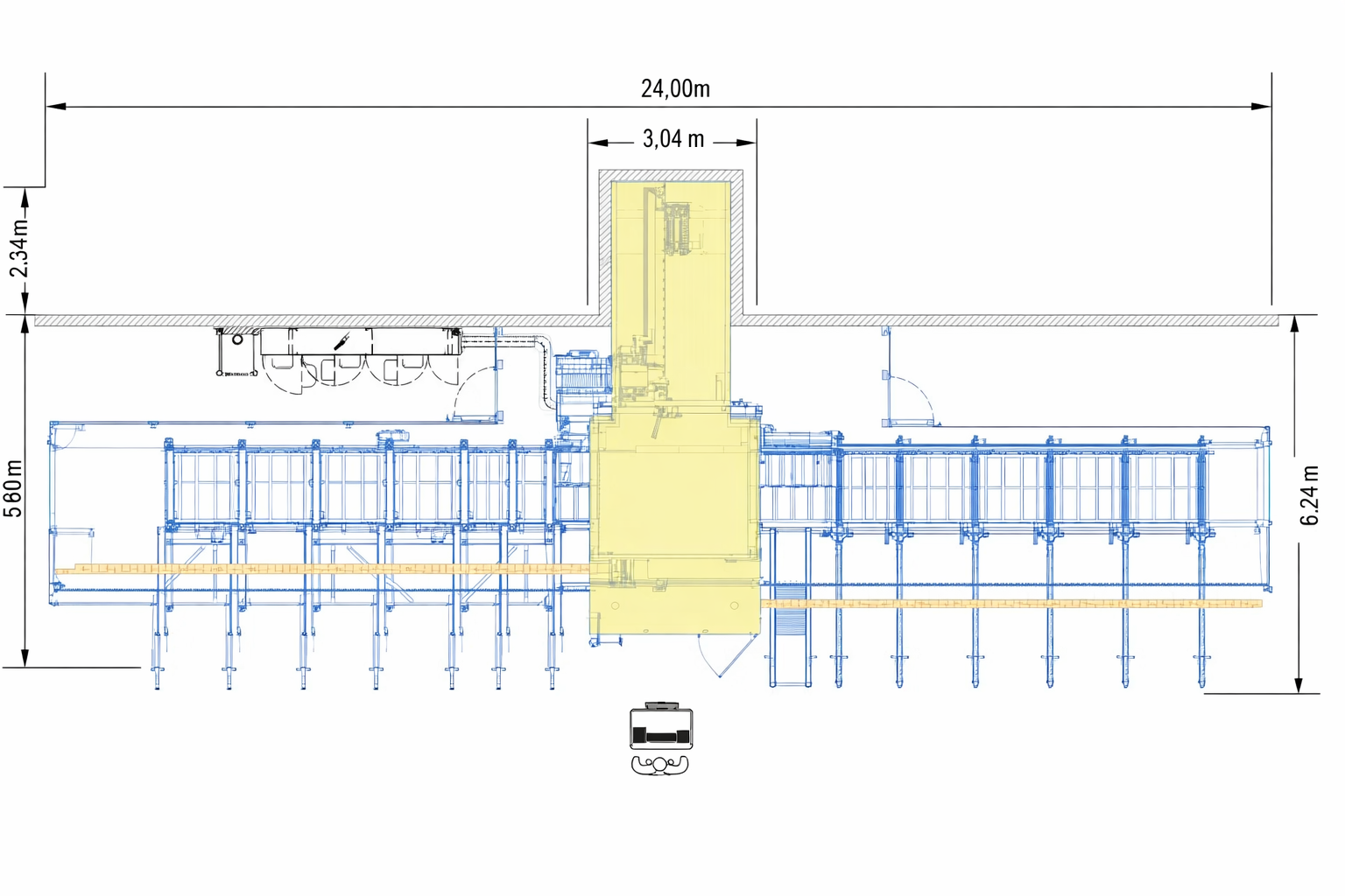
ROBOT-Max 1300
Диапазон обработки: от 20 × 60 мм до 610 × 1300 мм — для любых деревянных балок,
в том числе для панелей CLT (Cross Laminated Timber,
перекрестно-склеенная деревянная панель).
ОСНОВНЫЕ ХАРАКТЕРИСТИКИ ROBOT-Max
Максимальная производительность, максимальная гибкость, максимальное поперечное сечение.
Обрабатывайте все 6 сторон детали за один проход — благодаря
32 свободно выбираемым инструментам больше не требуется поворачивать заготовку.
Все операции выполняются за один проход.
ROBOT-Max поставляется с мощностью 29 кВт, жидкостным охлаждением и
регулируемой частотой вращения шпинделя от 0 до 15 000 об/мин.
Станок спроектирован для многолетней промышленной эксплуатации — все процессы выполняются
с впечатляющей скоростью и точностью.
Создание деталей класса «люкс».
Дополнительный 5-осевой пильный / пазовый / разметочный агрегат мощностью
13 кВт еще больше увеличивает производительность ROBOT-Max.
Оба агрегата идеально работают в паре: пока пильный агрегат выполняет технологические операции,
следующий необходимый инструмент обычно уже установлен на роботизированном блоке.
ГЛАВНЫЕ ВЫГОДЫ
- Возможность индивидуальной конфигурации;
- 5-осевой пильный / пазовый / маркировочный агрегат для повышения производительности;
- Обработка поперечных сечений от 20 × 60 мм до 610 × 1300 мм;
- 6-осевая технология — обработка с 6 сторон за один проход;
- 6-осевая технология — использование до 32 различных инструментов.
Примеры обработки ROBOT-Max
С большим увеличением гибкости, качества и эффективности.
ИДЕАЛЬНЫЕ ОБРАБОТКИ
ROBOT-Max выполняет все виды обработки с максимальной эффективностью,
без необходимости переворачивания детали и
за один проход.
Готовые детали отличаются исключительной точностью и
безупречным качеством поверхности, без повреждений и дефектов.
Высокая степень индивидуальной конфигурации ROBOT-Max доказывает свою ценность
на протяжении всего срока эксплуатации оборудования. Станок может быть
оптимально адаптирован к новым производственным требованиям
даже спустя длительное время после покупки.
Увеличение производительности при одновременном снижении затрат
6-осевой ROBOT-агрегат с гибкой системой смены инструмента идеально подходит
для решения практически любых производственных задач:
- производство деталей деревянных каркасов;
- изготовление брусовых домов;
- фахверковые конструкции;
- детали из клееного бруса;
- обработка элементов из CLT.
Обрезка (форматирование), нарезание пазов, сверление, фрезерование, долбежка,
маркировка и разметка — при наличии подходящего инструмента в магазине
возможности ROBOT-Max практически безграничны.
Бесступенчатая регулировка частоты вращения шпинделя ROBOT-агрегата
в сочетании с различными стратегиями подачи инструмента и
индивидуально подобранными циклами обработки, адаптированными под конкретные требования,
обеспечивает отличное качество готовых деталей.
Сегментация и разделение облегчают процессы
Торцевание и обработка больших поперечных сечений традиционно являются
серьезной задачей для деревообрабатывающих предприятий. С помощью
ROBOT-Max эти операции выполняются уверенно, точно и с высоким качеством.
Для решения данных задач доступны два альтернативных варианта обработки:
Торцевое фрезерование
Торцевое фрезерование в начале и в конце детали с использованием
шейперной фрезы обеспечивает
высочайшее качество поверхности и точность обработки.
Подрезка и торцевание
Подрезка и торцевание (отпиливание) выполняются с помощью
5-осевого круглопильного агрегата.
Размер отрезаемых сегментов и стратегия распиловки
удобно настраиваются в программном обеспечении Cambium
до начала обработки, что повышает гибкость и эффективность производства.
Индивидуализация, которая работает каждый день
Высокая степень индивидуализации концепции ROBOT-Max ежедневно доказывает
свою практическую ценность в реальных производственных условиях.
Производительность, универсальность и гибкость ROBOT-Max в сочетании
с мощью программного обеспечения Cambium устанавливают
новый стандарт в промышленном производстве.
Модульная конструкция
Может быть индивидуально адаптирована к вашим производственным потребностям.
Запатентованный высокопроизводительный ROBOT-агрегат
Высокая производительность означает максимальную эффективность,
увеличенную выработку и превосходное качество готовой продукции.
Доработка деталей или повторный проход через станок
не требуются даже при обработке
максимальных поперечных сечений древесины.
Результатом является высокая точность обработки.
Уникальная система измерения и управления подачей Hundegger
с интуитивно понятным и удобным для пользователя управлением
позволяет устранить нежелательные вибрации и обеспечивает
максимально плотное базирование детали.
Это гарантирует высокую эффективность производственного процесса,
стабильное качество готовых деталей и, как результат,
прогнозируемую окупаемость инвестиций для наших клиентов.
5-осевой агрегат для распиловки, нарезки пазов и разметки
Совместная работа 6-осевого ROBOT-агрегата и
5-осевого пильного агрегата создает
ценность класса «люкс».
Это значительно повышает эффективность и скорость
производства, усиливая вашу конкурентоспособность.
Подвесной 5-осевой пильный / пазовый / разметочный агрегат
мощностью 13 кВт дополнительно увеличивает
производительность ROBOT-Max.
Оба агрегата идеально работают в паре: пока пильный агрегат выполняет
технологические операции, следующий необходимый инструмент
для обработки обычно устанавливается одновременно на
ROBOT-агрегате.
Бесфланцевый 5-осевой агрегат с пильным диском
диаметром 800 мм, способным поворачиваться на
360° и выполнять наклон до 180°,
обеспечивает превосходные результаты при выполнении:
- поперечных и торцевых распилов;
- сложных (составных) распилов;
- стыков коньков крыши;
- вырезов свесов карнизов;
- различных конструктивных соединений.
Именно так вы производите продукцию сегодня —
с высочайшим качеством, точностью и скоростью.
Сверлильные агрегаты
Опционально на роботизированный агрегат может быть установлено
до двух горизонтальных сверлильных агрегатов.
Это решение позволяет выполнять отверстия
на глубину до 525 мм
без необходимости смены инструмента,
что повышает скорость и эффективность обработки.
Дополнительный магазин инструментов
Прочная конструкция и применение передовых технологий
позволяют установить дополнительный магазин
для трех крупногабаритных инструментов.
Это решение предназначено для размещения таких инструментов,
как пильные диски или
специальные фрезы диаметром до 520 мм,
что расширяет возможности обработки и повышает гибкость производства.
Сменный пазовый агрегат
Точная нарезка пазов — для создания идеально точных соединений
ROBOT-агрегат может быть автоматически оснащен пазорезом.
Агрегат обеспечивает доступ к детали
со всех шести сторон и выполняет обработку
под любыми углами и наклонами
на глубину до 400 мм.
Системы маркировки Inkjet
Мощная система Inkjet наносит на детали
текст, графику или штрих-коды,
обеспечивая четкую и долговечную маркировку.
Доступны чернила различных цветов,
что позволяет адаптировать маркировку под
производственные и логистические требования.
Функция разметки (карандаш)
Маркировочное устройство, встроенное в
блок 5-осевой пилы, позволяет
наносить точную разметку на детали
непосредственно в процессе обработки.
Разметка выполняется с трех сторон детали
без необходимости смены инструмента,
что повышает скорость и удобство производственного процесса.
Прижимные ролики
При обработке крупноформатных тонких панелей
прижимные ролики со стороны оператора
обеспечивают надежное удержание детали
в требуемом положении.
Это гарантирует стабильность обработки,
высокую точность и качество готовых изделий.
Ящик для коротких деталей с конвейером
Это очень удобная функция: короткие детали
автоматически помещаются в
выдвижной ящик, встроенный в станок.
Далее заготовки извлекаются из станка
по небольшому ленточному конвейеру
без прерывания текущего производственного процесса,
что повышает общую эффективность работы.
Принтер этикеток
Установленный на рабочем столе принтер этикеток
предназначен для печати этикеток с
различными свободно настраиваемыми полями.
В этикетках могут указываться, например:
название компании, название детали, номер детали,
сорт материала или сторона крыши.
Данные для печати могут импортироваться напрямую из CAD-программ,
что упрощает идентификацию деталей и повышает
точность производственных и монтажных процессов.
Дополнительный монитор
На консоли оператора может быть установлен
дополнительный монитор.
Он позволяет отображать внешние документы,
такие как чертежи САПР (CAD) или
моделирование процессов механической обработки,
что повышает удобство управления и контроль производства.








































